Bestill katalog
Bestill katalog

Karita - et populært herskapelig hus

Med et nydelig inngangsparti, en romslig hall, doble dører rett gjennom huset og ut til hagen, valmet tak og flott balkong, fremstår Mesterhus Karita som en klassisk perle.

  • BRA 178,0 m²
  • P-rom
  • 3

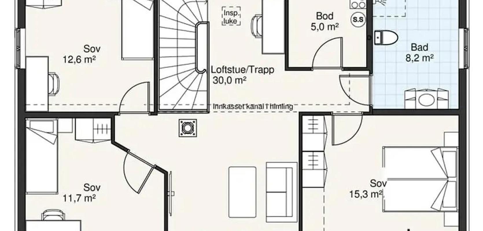
Herskapelig og praktisk
Med Mesterhus Karita har arkitekten lagt vekt på å skape et harmonisk og tidløst fasadeuttrykk. Den midtsentrerte balkongen og et overbygd inngangsparti er med på å gi huset en herskapelig stil. Den romslige hallen med trapp opp til andreetasje og doble dører inn til stua, gir et flott inntrykk når du eller dine gjester kommer inn i huset. Det er også praktisk med god plass der hele familien kommer inn, med en romslig bod, bad og vaskerom lett tilgjengelig.

Adskilt kjøkken
I dag er det blitt svært vanlig med åpne kjøkken- og stue-løsninger, men det er ikke alltid det er like praktisk. Her er det skyvedør mellom stua og kjøkkenet, slik at man kan ha det åpent mellom rommene, men man kan også stenge av ved behov. Hvis man har behov for flere stille steder til hjemmekontor, kan for eksempel kjøkkenbordet benyttes. Eller motsatt, hvis et av barna gjør lekser i stua, og de andre lager pizzadeig med kjøkkenmaskin på kjøkkenet, så kan man stenge ute bråket. Man kan også lukke bort alt rot på kjøkkenet, og sette seg i stua med gjester. Fra gangen er det er også en egen dør inn til kjøkkenet, slik at det er kort vei å bære matvarene.

Mye hus på liten flate
På innsiden fremstår huset som romslig, til tross for forholdsvis liten grunnflate. Med full takhøyde i begge etasjer får du mye hus for pengene. Boligen har tre soverom, men mulighet for fire, stor stue, romslig kjøkken og bad i begge etasjer. Dette gjør Karita til en populær bolig som kan passe inn i mange nabolag.

Bestill katalog